Как сшить пижамную рубашку. Коллекция с котиками «Миу». Фото-мастер-класс
Фотоотзывы 3 #patterneasy_пижамаМиу
Прибавки и припуски
Конструктивные прибавки
- к обхвату груди 30 см;
- к обхвату бедер 24 см.
Припуски на швы
- на соединительные швы — 10 мм;
- на обработку низа изделия — 30 мм;
- на обработку низа рукава — 10 мм.
Что потребуется
- универсальная швейная машина с функцией обметывания петель (машинные иглы № 80-90, лапка универсальная, лапка для обметывания петель);
- оверлок;
- утюг с паром (парогенератор);
- утюжильный стол;
- ручная игла для сметочных работ;
- белые нитки (для сметочных работ) — 1 катушка.
Материалы
Расход материала
Также потребуется:
- нитки в цвет основного материала — 4 катушки;
- пуговицы диаметром 15 мм — 5 шт.
Обозначения на выкройке
Как распечатать
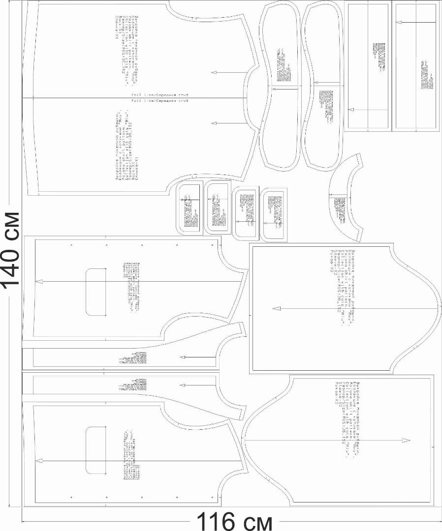
Детали и схемы раскладки на ткани
Спецификация деталей
- Полочка — 2 детали;
- Спинка — 1 деталь;
- Подборт — 2 детали;
- Воротник — 2 деталь;
- Обтачка — 1 детали;
- Клапан — 4 детали;
- Рукав — 2 детали;
- Манжета — 2 детали.
Схема раскладки размер 36/152
Схема раскладки размер 42/164
Схема раскладки размер 52/170
Схема раскладки размер 70/182
Как сшить пижамную рубашку
|
Подготовка деталей1. Подборта проклейте и обметайте внешний срез на оверлоке. |
|
2. Обтачку проклейте и обметайте внешний срез на оверлоке. |
|
3. Укрепите клеевой прокладкой клапаны. |
|
4. Сложите клапаны лицевыми сторонами внутрь. Сколите. Обтачайте, шириной шва 10 мм. Приутюжьте. Срежьте припуски. Выверните клапаны, выправите по шву.
|
|
5. Клапаны приутюжьте. |
|
6. Детали манжет сложите пополам лицевой стороной внутрь Уравняйте по коротким срезам манжет. Сколите и стачайте, шириной шва 10 мм. |
|
7. Припуски шва приутюжьте и разутюжьте. Манжету сложите пополам и заутюжьте. |
|
8. Детали воротника сложите лицом к друг другу. Сколите или сметайте, затем стачайте шириной шва 10 мм. |
|
9. Припуск срежьте на 4-5 мм, на скругления поставьте рассечки не доходя до шва 1-2 мм (или высеките скругления рельефными ножницами как показано на фото). |
|
10. Воротник выверните, расправьте. Косым стежком выметайте край воротника. Bымётайте со стороны нижнего воротника, слегка перекатывая (так, чтобы вам было чуть видно верхний воротник). Воротник отутюжьте.
|
|
Обработка плечевых и боковых срезов11. Сложите полочки со спинкой лицевыми сторонами внутрь. Уравняйте плечевые срезы. Сколите, стачайте шириной шва 10 мм. Приутюжьте шов. |
|
12. Плечевой шов заутюжьте в сторону спинки. |
|
13. Сложите лицевыми сторонами внутрь полочки со спинкой, уравняйте боковые срезы. Сколите, стачайте шириной шва 10 мм. Шов приутюжьте. |
|
14. Затем боковой шов заутюжьте на спинку изделия. |
|
15. Обметайте низ изделия по нижнему срезу. |
|
Обработка рукава16. Сложите деталь рукава лицевой стороной внутрь. Уравняйте срезы. Сколите, сметайте, совмещая срезы. Стачайте, шириной шва 10 мм. Обметайте срез. Шов приутюжьте. |
|
17. Заутюжьте шов на заднюю часть рукава. |
|
18. Соедините рукав с проймой изделия. Для этого детали полочки и спинки выверните наизнанку. Готовый рукав, наоборот, вывернуть на лицо и вложить в основную деталь. Вколите, вметайте, совмещая боковой шов совместите со швом на рукаве, а также контрольные метки. Втачайте, шириной шва 10 мм. Шов приутюжьте и затем заутюжьте по окату на изделие. |
|
19. Сложите борт и подборт лицом к лицу. Выровняйте срезы, совместите контрольные метки. Сколите или сметайте. Стачайте шириной шва 10 мм. |
|
20. Срежьте уголок не доходя до строчки 1 мм. |
|
21. Для того чтобы избежать лишней толщины при обработке нижнего среза изделия. Низний срез подборта срежте на 2 см и высеките уголок как показано на фото. |
|
22. Выверните верхние уголки борта, выправите по шву, прутюжьте. |
|
23. Подборт соедините с обтачкой горловины спинки, сколите боковые швы, стачайте шов разутюжьте. |
|
25. Готовый воротник вложите между бортом и подбортом к контрольной точке, затем сложите свободную часть подборта с верхней частью воротника лицом к лицу сколите, сметайте и стачайте от одной контрольной точки до другой, шириной шва 10 мм. |
|
26. Стачайте от одной контрольной точки до другой, шириной шва 10 мм, шов приутюжьте. |
|
Вот что должно получится |
|
27. Обтачку притачать к спинке, шириной шва 2 мм от края обтачки. |
|
28. Низ изделия заутюжьте на ширину припуска. |
|
29. Обработайте низ изделия швом вподгибку с открытым обметанным срезом. |
|
30. Выверните рукав на изнаночную сторону. Деталь манжеты не обработанным срезом совместить с нижним срезом рукава. Боковой шов манжеты уровняйте с боковым швом, сколите, а затем притачайте манжет шириной шва 10 мм, срез обметайте. |
|
31. Отверните манжету, шов приутюжьте на сторону изделия. |
|
32. Выверните рукав и манжету на лицевую строну, манжету приутюжьте. |
|
33. Приметайте клапан к перенесенной контрольной линии. Притачайте, шириной шва 10 мм, срежьте припуск до 5 мм. |
|
34. Затем настрочите клапан на полочку шириной шва 10 мм. Шов приутюжьте. |
|
35. Удалите все нитки временного назначения, очистите изделие от меловых линии. Обметайте петли на правой стороне изделия и пришейте пуговицы к левой. |
|
36. Проведите окончательную ВТО (влажно-тепловую обработку) изделия. Пижамная рубашка «Миу» готова. Если во время пошива возникнут вопросы, задавайте их в комментариях.
|
